开云体育-开云(中国) - 灯饰|吊灯|办公家具|设计师家具|Cleo枝形吊灯
CG-K1473
产品参数
-
型号:
CG-K1473
-
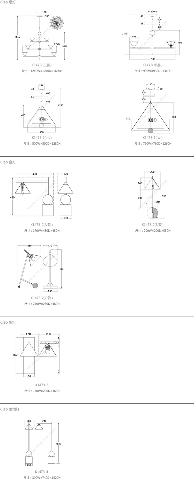
尺寸:
1240W*1240D*1650H
930W*930D*1340H -
材质:
产品描述
Cleo枝形吊灯以大胆的几何形式突出了混合物质的美感。 这款古董抛光黄铜吊灯采用镀金色罩内饰,可选择白色大理石球形的古色古香色调或黑色大理石球形黑色色调。

Cleo 吊灯 细节/功能展示

Cleo 吊灯 实景/空间展示






Cleo 吊灯 系列尺寸/示意图



